报税在美国是件大事!访问学者及其家属若无收入,是可以不报税的,但尽量都报税!!为了良好的纳税记录,持J签证的访问学者及家属,要及时报税!短期居住、没收入尽量也要报税。
- 需不需要报税?
根据美国国税局(IRS)的规定,自1993年起,凡是持有J、Q、F、J、M签证的外籍学者或学生,无论是否有工作或收入,只要是暂时居留在美国,都必须向IRS申报自己上一年度的税务情况。在美国合理报税对个人的信用记录有帮助,反之,如果被查出故意错报身份,会对以后在美国找工作,申请绿卡留下不良记录。所以,无论你是否符合中美税务协定的所得税豁免条款,最好都要报税!
- J1、J2如何报税?
报税人身份不同,报税表格和要求是不同的。J1/J2是非居民外国人(Nonresident Alien),只要没有收入,J1/J2报税,都只需要一个8843。每个人都要报税,孩子也不例外。
注意:J1、J2,没有收入,只需要提交Form 8843。但如果你在美国有合法收益,则还需要提交所得税申报表 (表格1040NR 或 1040NR-EZ)。
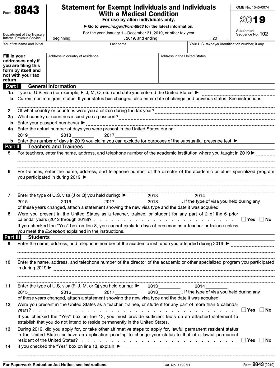
- 什么是Form 8843?
8843表格并不是用来填写所得税报税信息的,从本质上来说其实仅仅是一个身份测试。尽管J1/J2身份的访问学者在美国并无任何收入来源,也建议至少递交一份材料Form 8843表明你的身份。
- 8843 Form的IRS官方下载链接:https://www.irs.gov/pub/irs-pdf/f8843.pdf
- Form 8843填写指南。表格前两页P1和P2是信息填写及签名部分。填写指南在表格的后两页P3和P4。
- 如何提交Form 8843?
以上默认J1、J2,没有收入,只需要提交8843。但如果你在美国有合法收益,则还需要提交所得税申报表 (表格1040NR 或 1040NR-EZ),附上8843表格一起提交。最好再附上护照关键页及美国签证页复印件。
51访学网提醒各位美国访问学者:美国每年4月15日为报税截止日。无论是否有豁免,J1和J2都应及时报税。J1/J2无收入,只需填写Form 8843。J1/J2有收入,还需提交所得税申报表。如果有什么疑问,欢迎留言或咨询。


